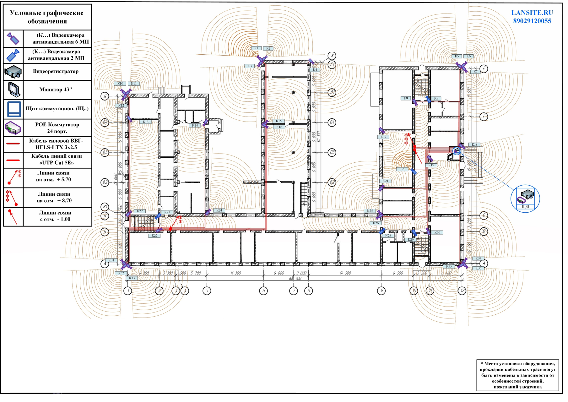
| 1 | Антивандальная IP видеокамера «Vesta VC-G460» Матрица «Sony IMX335» — 6МП (3072×2048) | 44 | Шт. | 8 850,00 | 389 400,00 |
| 2 | Антивандальная IP видеокамера «Vesta VC-G420» Матрица «Sony IMX307» — 2МП (1920 х 1080) | 16 | Шт. | 7 280,00 | 116 480,00 |
| 3 | Коробка распределительная «SP Box» | 60 | Шт. | 320,00 | 19 200,00 |
| 4 | Шкаф сетевой настенный 19″, 6U, 600*600 | 2 | Шт. | 10 640,00 | 21 280,00 |
| 5 | Шкаф коммутационный ШТК-Э-24.6.6-13АА | 1 | Шт. | 37 560,00 | 37 560,00 |
| 6 | iRUS-NVR2324″ 32-канальный цифровой IP видеорегистратор (4HDD — 10ТБ) | 2 | Шт. | 62 890,00 | 125 780,00 |
| 7 | Vesta VNVR-8532 32-канальный цифровой IP видеорегистратор ПЕНТАПЛЕКС (M 2HDD rev 5.0) | 1 | Шт. | 23 890,00 | 23 890,00 |
| 8 | Жесткий диск 8ТБ Western Digital | 6 | Шт. | 25 000,00 | 150 000,00 |
| 9 | Полка телекоммуникационная консольная 1U | 5 | Шт. | 1 340,00 | 6 700,00 |
| 10 | PoE-коммутатор для систем цифрового видеонаблюдения «VSW-226P» — 24 порт | 3 | Шт. | 26 950,00 | 80 850,00 |
| 11 | PoE-коммутатор для систем цифрового видеонаблюдения «VSW-318P» — 16 порт | 1 | Шт. | 16 350,00 | 16 350,00 |
| 12 | Дифференциальный автомат АВДТ-63 10А/ 30мА | 2 | Шт. | 1 370,00 | 2 740,00 |
| 13 | Кабель силовой ВВГнг(А)-LSLTx 3х1.5 (N.PE) | 140 | М | 90,00 | 12 600,00 |
| 14 | 32″ (80 см) LED-телевизор Samsung UE32N4000AUXRU | 2 | Шт. | 29 730,00 | 59 460,00 |
| 15 | 43″ (108 см) LED-телевизор Philips 43PUS7608 | 1 | Шт. | 39 320,00 | 39 320,00 |
| 16 | Кронштейн крепления телевизора | 3 | Шт. | 2 320,00 | 6 960,00 |
| 17 | ИБП Ippon Smart Winner II 2000E, 2000ВA | 1 | Шт. | 72 800,00 | 72 800,00 |
| 18 | Кабель UTP Cat 5E LS пониженной пожарной опасности | 2 070 | М | 39,00 | 80 730,00 |
| 19 | Установка в проектное положение и отладка видеокамеры | 60 | Услуга | 1 950,00 | 117 000,00 |
| 20 | Прокладка, крепление кабельных трасс | 2 210 | Услуга | 95,00 | 209 950,00 |
| 21 | Сборка коммутационного шкафа, настройка, конфигурация оборудования | 3 | Услуга | 5 000,00 | 15 000,00 |
| 22 | Производство пусконаладочных работ смонтированной системы видеонаблюдения | 1 | Услуга | 179 700,00 | 179 700,00 |
| | | | Итого: | 1783 750,00₽ |